1935山田智三郎邸
・名称 山田智三郎邸
・場所 鎌倉市
・時期 1935年
●写真(竣工当時 以下11枚は山口事務所所蔵、現在はRIA所蔵)
●写真(竣工当時、 『国際建築』1936年3月号掲載)
広間 床:楢縁甲板。壁天井:漆喰中塗下地鳥ノ子張り。間仕切り:引込釣戸、車ベ―クライト製、框及骨は襖と同様、縁臙脂色漆塗り見付三分。ドア:前同様レバーハンドルはホワイトブロンズ、見え懸り:ペンキ塗り灰白色。カーテン暗紫色、敷物濃褐色。
食堂 凡てホールと同様。小椅子布地は黒鼠白の綾織市松張り。カーテン黄色。テーブル天板正二分磨き硝子下に白地に臙脂の格子縞布を敷く。
居間 床:楢縁甲板。壁:ホール同様下地襖紙張色は銀鼠。天井:鳥の子張り。
間仕切り:ホールと同様。カーテン暗紫色。大椅子は青と白の縞織物。
小椅子及びソファ黄色。敷物は紫白の縞。壁付戸棚は黒と白のラッカー吹付。
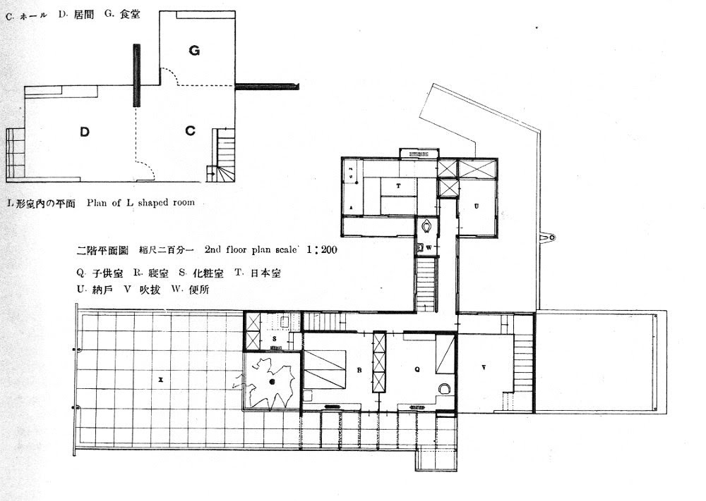
●図面(『国際建築』1936年3月号掲載)
●解説
北鎌倉の現場が了った 山口蚊象
Y邸・北鎌倉・圖版參照(『国際建築』1936年3月号掲載)
北鎌倉の現場が了った。いよいよ土地が決まって本格的スケッチに着手たのが一昨年の暮のこと、設計が完成して堀方の始まっ旭のが三月だから十月に竣工したとして、最初から通算すると小一年費してしまったことになる。
少し工期が長過ぎた様だけれどその間の変更やらやり直しなどの冗期を除けば正味は割合に少ない。圖板の上で相当ひねったものでもさて空間的拡がりを持って来ると、思ひもかけない困ったものになること再三でない。構造にしてからが軸部の圖面の折、袋壁の中室全部が天井の中室と連なる様に配置しても、思ひ掛けないところに胴縁が下がって来たり、天井野縁やパイプで大切な個所を塞さいでしまふことになったりしてその都度やりくりに追はれる。大工さんは永年の年期で叩き上げた自信から自己流で上手に納めて下れた心算りでも、こちらはまことに有難迷惑なこともある。建方が済むと目に立って進行して来るので、一週間二日の割合位の出張では間に合はなくなってしまふ。
木造はどんな小さな家でも毎日付いて居なければ完全なものが出来ないとつくづく思ったことだ。とは云へこの家の構造が新工風による特殊性を持つてゐろのではない。強いて云へぱ梁の継手柱と胴差の固め等に少しばかり部分的に変った仕事をしたに過ぎない。それとてこの家の思ひ切て南面の開口を大きくしたのに依る脆弱性を補強したのに止まる。
夏期に於ける換気に就いて相当の考慮をはらひ、主要な室はどれも夏涼しくなる筈だけれども、初めての試みだからその期にならなければ確信を持ってここに報告すろことが出来ないのは残念である。
この家の主人は小壮な美術史家で、永くベルリンに學んで、リッツェンゼ湖畔の洒落たジードルングに住ひ、加へて在獨中は盛んに新興建築研究をやって居られたので、この道にも詳しい。従って新らしい建築のよき支持者であるのだから建築家としてこれ位恵まれた仕事は少ない。
日本歯科医専の場合等もそうであったが、全く私などよき施主に恵まれてゐることを思ひ合せて幸幅である。それだけに仕事に張りがあり終始楽しく現場通ひも出来得たと思へば誰れよりも施主に感謝しなければなるまい。
プランの構成に当っては主人夫妻、子供、書生、女中二人の各室を如何に配置すべきかを考へたのは勿論であるが、大体(1)居間・ホール・食堂を廣く使へ必要に応じ、これ等三つの部屋を連ねて一つにしようとしたこと、(2)書斎は主人の仕事の関係もあるので住居部分から可及的離されること、(3)面積のバーセンテージを出来るだけ大にすること、(4)一般的問題としては通風をよりよくするために室の重なり(南北の方向に前後する)を造らぬこと、(5)これはプランの形の上でのことであるが細かい凹凸を避けること(幾分工費が廉くなり、施工も容易になるだらう)、(6)それに夏期に備へてテレスは陽陰を多く探り晝間の涼み場とし、夜は二階のバルコンをこれに当てるために廣い面積を必要とすること等を考慮に入れてプランの構成を練ったことだ。
外装は、川崎式ラスにモルタル漆喰の白色仕上げ、屋上及びバルコンは普通のアスファルト防水層で、押へは防水モルタル塗りである。内部の壁、天井は漆喰仕上げでは昔の反響も悪るいし、木摺下地では間違ひなく亀裂が来るので、中塗り仕舞の上へ袋張り、鳥ノ子紙又は襖紙を貼ったが、色の効果もよく成功したと思ってゐる。
また各ドアーは襖と同仕様としこれに鳥ノ子を張り、縁はエンヂ色の漆仕上、これは開閉が軽軽くべニア戸の様に不愉快な大きい音がしない。それに板戸と違って暖房や梅雨期等に歪みが出ないと云ふ御景物も付く。
どこでも悩まされるが盗難除の雨戸をどう仕末するかが問題だった。框が一吋アングル、それへ中貫を小間返へしに木捻で横に取付けた釣戸を嵌め込んで見たが、結果は比較的良好で、これだと閉め放して置いても内外共さして目ざわりにならないようだ。まだ書きたい事柄はあるが手前味噌になるし、長くなるので止める。
この設計に就いては助手の河裾逸美君、施工では笹本一太郎君の助力に負ふところ多大であったことを特記したい。






















